10.10.2025 - PUPOMUR I: 24 VIVIENDAS AL NORTE DE MURCIA
Una promoción pensada por y para personas que buscan una manera de vivir tranquila y segura, en conexión con el exterior a través de amplias y varias terrazas por vivienda.
En la zona norte de la ciudad de Murcia, donde se proyecta la ciudad del deporte, el área de mayor proyección y crecimiento de la ciudad. Acceso y salida perfecta para conexión con auto vías.
Un entorno tranquilo y próximo al centro de la ciudad a través del carril bici o tranvía, que te per mite conectar con el centro en cuestión de minutos y disfrutar del descanso en tu hogar.
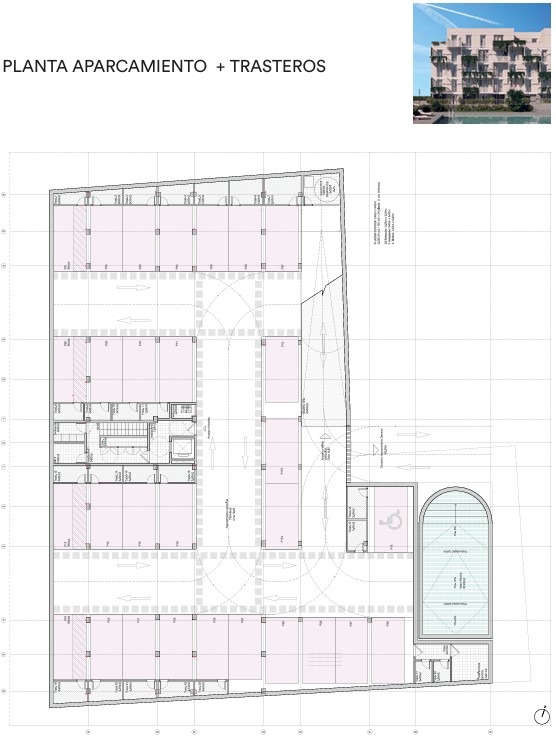
Edificación singular, de 24 viviendas de 1, 3 y 4 dormitorios con distribución flexible, contempo ránea, amplias terrazas privadas, con trastero y plaza de aparcamiento, azotea comunitaria y espacio ajardinado privado con piscina.
Viviendas que mejoran la calidad de vida de las personas gracias a una arquitectura que aporta bienestar, espacios diseñados con alma, bien iluminados y armoniosos, que te hacen sentir bien.
Ofrecen también una gran calidad de vida por su alto grado de confort al disponer de una califi cación energética A, gracias a su envolvente de gran calidad, sus sistemas de producción de ACS e instalación de paneles fotovoltaicos.
Si buscas conectar con la naturaleza, el descanso en un entorno privilegiado, éste es tu hogar.
.jpg)
.jpg)
.jpg)
.jpg)

.jpg)


M. José Peñalver | M. 629 606 063 | mjpenalver@coamu.es | C. Maestro Alonso, 2. Entlo. 2. 30005, Murcia